Если погрузиться в изучение немецких журналов и каталогов частных жилых домов для среднего класса (а на средний класс ориентированы практически все каталоги, так как богатые люди строят дома по индивидуальным проектам), то, на первый взгляд, можно утонуть в их количестве и разнообразии: сотни фирм и архитекторов предлагают свои варианты понимания человеческой мечты. Однако, просмотрев несколько десятков проектов домов и внимательно вникнув в их особенности, можно обнаружить, что то и дело сталкиваешься с похожими архитектурными решениями, и что вообще, немецкие дома для среднего класса имеют в себе очень много общих типологических черт. Изучение этих черт и использование лучших из них в проектах коттеджей может принести много пользы и российским застройщикам .
Сегодня можно с уверенностью говорить об устоявшемся стереотипе немецкого дома для среднего класса, обладающего совершенно определённым набором характерных признаков. Эти общие типологические черты находят своё выражение как в объёмно-пространственной структуре, так и в планировке, хотя внешний облик домов, применяемые для их строительства технологии и материалы, совершенно различны. Это похоже на вариации одной мелодии: главная тема остаётся одной и той же, но каждый раз она исполняется совершенно по-разному. Если архитектура - это застывшая музыка, то в сфере архитектуры домов для среднего класса господствует сегодня джаз с его импровизациями на заданную тему.
В этой статье мы коснёмся лишь объёмно-планировочных принципов немецких домов для среднего класса, не касаясь домов, наделенных особо острым архитектурным характером, и не затрагивая такие стороны дела, как технологии и материалы.
Однако несколько слов, тем не менее, надо сказать о сбережении энергии и тепла немецкими домами, так как современный дом Германии не мыслим без внимательного и трепетного подхода к этому вопросу. Стандартная, нормированная концепция содержит в себе три основных позиции.
- Трансмиссионные потери тепла ограничиваются сопротивлением теплопередаче для стен - от 2,25 до 4,0 м2 С /Вт, для кровли - от 5,0 до 6,6 м2 С /Вт, для нижнего перекрытия - от 2,9 до 3, 4 м2 С /Вт, для окон - от 0,5 до 0,8 м2 С /Вт (переведено в российские единицы измерения).
- Наружная оболочка дома должна быть плотной во избежание затрат тепла на обогрев инфильтрующегося воздуха.
- Отсутствие (или минимизация) обусловленных материалами и конструкциями «мостиков холода», через которые происходит утечка тепловой энергии.
Эти основные положения широко распропагандированы в Германии и являются руководством к действию для любого бюргера, озадаченного строительством собственного дома. Соответственно, все проектные и строительные фирмы в своих каталогах непременно дают характеристики предлагаемых домов не только в объемно-планировочном, но и в энергетическом аспектах.
По своей объёмной структуре типовой дом - совершенно традиционная, проверенная веками схема, которая в не меньшей степени, чем для Германии, типична и для России. Это - прямоугольный в плане дом под двускатной кровлей, с первым и со вторым (мансардным) этажами. Стены мансардного этажа в немецком доме вертикально поднимаются над первым этажом на 1-1,5 метра, а лишь затем переходят в стропильную конструкцию с кровлей. Таким образом с минимальными затратами средств достигается то, что не пропадают площади под скатами кровли, и второй этаж практически равен по площади первому. Иногда под немецкими домами делается подвальный этаж, но, в большинстве случаев, от него отказываются - в нем просто нет большой необходимости, так как все функции дома прекрасно реализуются в надземных этажах.
Гараж на одну или на две машины, как правило, пристраивается к дому, и представляет собой чаще всего просто навес, открытый с одной или с двух сторон. Иногда гараж связывается с домом через крытый переход, чтобы в машину можно было сесть, не вымокнув под дождем. Часто из соображений той же экономии практичные немцы предусматривают просто открытое место (мощеную площадку) для парковки автомобиля рядом с домом. Если есть площадь для парковки рядом с домом, то тратить деньги на постройку для автомобиля гаража станет разве что обладатель исключительного автомобиля, например, какого-либо раритета.
Общая площадь немецкого дома для среднего класса находится в пределах 120 - 180 м2 (без подвального этажа). Состав помещений выглядит следующим образом:
1-ый этаж :
- Прихожая - 6-10 м2
- Гостиная (включая столовую) - 30- 50 м2
- Кухня - 8-12 м2
- Туалет - 3 м2
- Техническое помещение - 6- 8 м2
- Лестница на 2-ой этаж
Кроме названных помещений, без которых не обходиться первый этаж любого дома, часто там может располагаться также кабинет или комната для гостей площадью 10-14 м2, кладовая 3-6 м2 и (при отсутствии подвала), хозяйственное помещение 6-9 м2.
2-ой этаж :
- Холл - 6-12 м2
- Спальня родителей - 12-20 м2
- Детская комната - 11-15 м2
- Детская комната - 11-15 м2
- Ванная комната - 6-10 м2
- Лестница
Дополнительно на 2-ом этаже могут находиться гардероб или кладовая 4-8 м2. Очень любимы в Германии балкон или лоджия на 2-ом этаже, без которых обходиться редко какой дом.
Функциональная схема домов для среднего класса отточена до предела. На первом этаже гостиная и столовая представляют собой единое пространство, являющееся ядром дома, его главным помещением. Эта комната связана с кухней, которая часто тоже не выделяется в отдельное помещение, а лишь визуально разграничивается от гостиной мебелью: барной стойкой или стеллажами. Хотя кухня нередко отделяется от гостиной и обычной перегородкой с дверью или перегородкой из прозрачных стеклоблоков. Таким образом, на первом этаже отгораживается, как правило, лишь входной блок, включающий в себя прихожую, лестницу и туалет, а вся остальная часть этажа работает как единое открытое пространство. Такая структура - с перетекающими друг в друга пространствами - создает не только ощущение простора и свободы, но и просто очень удобна. Суммарная площадь главного помещения в доме, состоящего из трех функциональных зон - гостиной, столовой, кухни - находится в пределах 40-60 м2. Эта комната предназначена для коммуникации членов семьи и для приема гостей. Почти никогда эта комната на обходится без камина.
Второй этаж дома - зона компактных помещений личного характера, куда, как правило, гости не допускаются. Все помещения отделяются друг от друга перегородками, и носят уютный характер.
Холл делается всегда довольно большого размера, и является не просто распределительным помещением перед спальными, но и, часто, игровой площадкой для детей. Из холла двери ведут в спальные комнаты и в ванную. Если нет необходимости в типовом, самом распространенном варианте - в трех спальных - то освободившиеся площади используют под расширение холла, под рабочую комнату (кабинет), или как - либо по иному, например, под сауну или под комнату для хобби.
Самым распространенным и типовым по планировочной компановке помещений на сегодняшний день является решение с двумя взаимно перпендикулярными, практически равноценными осями, и с пропорциями в плане, близкими к квадрату - таких домов явное большинство.
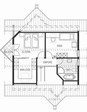
Среди домов для среднего класса, предлагаемых сейчас на рынке в Германии, очень ярко и концентрированно вобрал в себя все типологические черты этого класса домов проект «Эсприт-2000», предлагаемый фирмой Платц-Хаус. Точность и продуманность объемно-планировочных решений этого дома похожи на яркий и чистый звук. В этом доме есть все, что надо для комфортной жизни, и нет ни одной лишней или случайной детали.
Все, что было сказано о типичной планировке немецкого дома, проявлено в этом проекте в наиболее концентрированном виде - в этом плане проект «Эсприт - 2000» можно назвать классическим. Общая площадь дома 126 м2, его габариты составляют 10,15м х 7,71м. Гостиная, столовая и кухня представляют собой одно помещение общей площадью около 50 м2. Кухня визуально отделена от столовой стойкой. Три больших, остекленных до пола, двери открываются на террасы и дают много света и солнца. Большая площадь остекления оптически увеличивают размеры помещения и визуально связывает его с садом. Для этого дома - как и для немецких домов вообще - типичны большие выносы кровли над стенами, так, что под ними свободно размещается защищенная от дождя терраса. Спальная комната родителей хорошо продумана и имеет прекрасные пропорции. Также, как и одна из детских спальных, она имеет выход на балкон.
Типичный немецкий дом - проект Эсприт-2000: фасады с разным цветовым решением, планы этажей, интерьеры. |
||
![]() ![]() ![]() ![]() |
||
![]() |
||
Фасады дома отличаются тонкостью и элегантностью, изысканно найденными пропорциями. Деревянная обшивка фасадов дома защищена большими выносами кровли, а ее фактура красиво контрастирует с металлическими балконами и белыми коробками балконных дверей и подшивкой кровли.
Если о доме «Эсприт-2000» можно говорить как об основной музыкальной теме, то вариации и аранжировки могут быть просто бесконечными.
В немецких домах наиболее сложно и изощренно обыгрывается планировка первого этажа и его главного помещения - гостиной-столовой. Именно вокруг этой оси вращается жизнь немецкого дома и фантазии архитекторов. Достаточно большая площадь этой комнаты создает предпосылки для богатых и разнообразных интерьерных решений, которые наделяют дом индивидуальностью и которые служат выражением вкусов и пристрастий хозяев и (или) архитектора.
Возможности для этого при такой планировке и вправду безграничны. Наиболее простой и распространенный способ наделить дом индивидуальностью - это обыграть первый этаж эркерами. Эркера могут быть самой разной формы: прямоугольной, шестигранной, полукруглой, или наиболее острой и экспрессивной - треугольной. Сюда может открываться второй свет из помещений мансардного этажа, к этой комнате пристраивается открытая терраса или зимний сад.
Дом «Фамилия» фирмы «Веко-Массивхаус» наделен мощным шестигранным эркером, который своей монументальностью символизирует прочность немецких семейных устоев. В эркере находится столовая, из окон которой открывается вид на сад в трех направлениях. Из столовой предусмотрен выход на открытую террасу, которая перекрывается сверху большими выносами кровли и лоджией так, что под ней можно продолжать завтрак даже в теплый летний дождь. Эркер на втором этаже пересекается горизонталью лоджии, создавая этим противопоставлением вертикали и горизонтали неповторимый характер дома. Под лоджией располагается открытая уютная терраса. На первом этаже дома предусмотрен также кабинет.
Проект «Фамилия»: фасады, планы этажей. |
||
![]() |
![]() |
|
Второй этаж этого дома представляет собой совершенно классическую компановку из трех спальных и ванной комнаты вокруг достаточно обширного холла.
Общая площадь дома 150,39 м2.
Более острое и экспрессивное решение, претендующее на оригинальность, предложено архитектором Эрнстом-Вольфгангом Пэльх в сотрудничестве с фирмой «Вебер-Хаус». Неожиданно срезанный по диагонали угол гостиной и два образовавшихся при этом остроугольных эркера придают дому своеобразный и экспрессивный внешний вид.
Проект фирмы «Вебер-Хаус»: фасады, планы этажей. |
||
![]() |
|
|
![]() |
![]() |
|
Большая площадь остекления и необычная геометрия делают интерьер гостиной запоминающимся и наделенным острым характером. Окна и двухстворчатая распашная дверь ориентированы на южную сторону и открываются к террасе, перекрытой углом кровли.
На втором этаже по площадям свободно могло бы разместиться три спальных, однако для бездетных владельцев дома в этом не было никакой необходимости. Поэтому здесь находится небольшая комната для гостей, а оставшиеся площади использованы под большого размера спальню владельцев и гардеробную комнату площадью 9,5 м, через которую спальная соединяется с ванной комнатой по большой дуге. Общая площадь дома 138 м2.
В доме «Рейнбоу» фирмы «Вебер-Хаус» гостиная-столовая наделена в плане полукруглой формой с практически сплошным остеклением. Благодаря этому гостиная наполнена солнцем и светом, а закругленная форма стен создает ощущение спокойствия и уюта. В отличие от предыдущего дома, он принадлежит семье с тремя детьми, что определило специфику расположения остальных комнат: вместо распространенного на первом этаже кабинета находится спальная родителей с примыкающей к ней ванной комнатой, а на втором этаже - три детские спальные, объединенные между собой большой галереей, являющейся одновременно игровой комнатой. Однако функциональное назначение может меняться в зависимости от состава семьи владельцев или от их пожеланий.
Проект «Рейнбоу» фирмы «Вебер-Хаус»: фасады, планы этажей. |
||
![]() |
![]() |
|
![]() |
![]() |
|
Необычным является также цветовое решение дома: как на фасадах, так и в интерьерах использованы яркие и чистые цвета - красный, синий, зеленый, желтый. Круглый и пестрый - так двумя словами можно определить характер этого дома. Общая площадь дома 132,15 м2.
Примеры очень похожих немецких домов для среднего класса можно привести еще почти бесконечное множество, однако их концепция их объемно- пространственной и функциональной структуры будет очень похожей на вышеописанную. Характерные для современной Германии частные дома можно посмотреть на сайте www.bautipps.de.
Что можно позаимствовать в архитектуре немецких коттеджей? Прежде всего, их рационализм и умение использовать площади дома максимально эффективно - нет ни одного лишнего, или плохо используемого квадратного метра. В этом отношении коттеджи Архитектурного бюро "Альфаплан" не уступают немецким домам - такой подход изначально ставился во главу угла проектирования частных домов.
Но что не стоит заимствовать у немцев - так это их подход к домам с точки зрения внешнего вида. Если говорить не об эксклюзивных, а о домах массовой коттеджной застройки, то на мой взгляд немецкие коттеджи несколько скучноваты. И связано это прежде всего с тем, что в большинстве своем, это дома сборного типа, изготавливаемые на заводском конвеере, и собираемые на месте. С этой стороны это явно не образец для подражания. Дома, проектируемые в России, ярче и индивидуальней.
Владимир Тарасов
архитектор, генеральный директор Архитектурного бюро "Альфаплан"














